
Miniature Bearings Australia
SC222C-114-C-SK-C - Datasheet
Brighton Best
Category Information
Screws - Socket Cap - Alloy Steel - Black OxideBlack Oxide Alloy Steel Socket Cap Screws. UNC - UNF - METRIC - Alloy Steel.
- An expanded range may be available on special order. Please enquire.
- Imperial Sizes to ANSI B18.3.
- Metric Sizes to DIN912.
Product Data
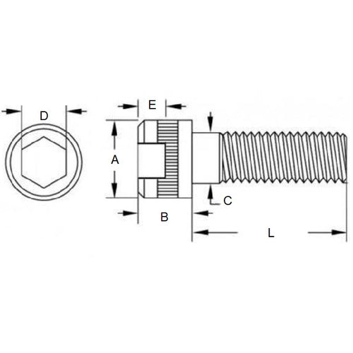
- Thread Size (C) : 7/8-9 UNC (22.23mm)
- Thread Length (L)
114.3
mm
(Equiv. 4.5 in.) - Material High Tensile Steel / Black Oxide
- Head Length (B Max.) 22.2 mm
- Head Diameter (A Max.) 33.3 mm
- Drive Depth (E) 10.97 mm
- Shank Diameter (C) 21.96 - 22.23 mm
- Hex Key (D) 19.05 (3/4) mm
- Pitch 2.822 mm
- Threads Per Inch 9 TPI
- Min thread Length 57.2 mm
- Material High Tensile Steel Black Oxide
Product Compliance and Data
Additional Resources
- Screws & Nuts Catalogue
- Shoulder Screws Catalogue
- Socket Set (Grub) Screws Catalogue
- Thumb Screws & Thumb Nuts Catalogue
- Thread Size Chart - Combined Imperial & Metric
Cross References
- 91251A890
- HK72354B
- HK-72354B


