
Miniature Bearings Australia
SHLD064-025-SKT-C - Datasheet
Brighton Best
Category Information
Screws - Shoulder - Socket Head - Carbon SteelCarbon Steel Socket Head Shoulder Screws. Hardened
- Also known as Pivot Pin, Fulcrum Screw, Stripper Bolt, Stepped Screw and Shoulder Socket Cap Screw
Product Data
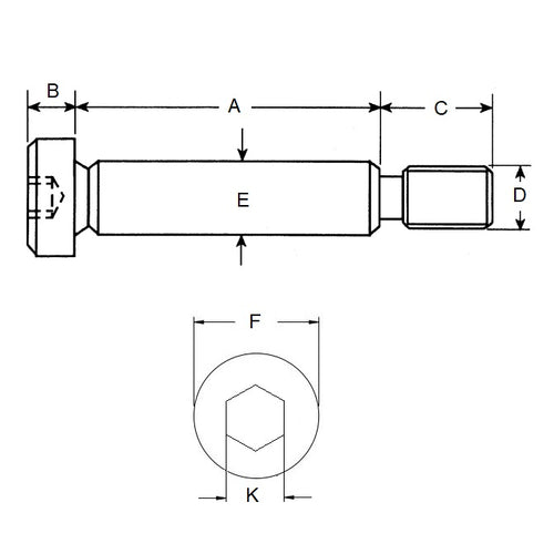
- Shoulder Diameter (E)
:
6.350
mm
- 0.010 / - 0.040
(Equiv. 0.25 in.) - Shoulder Length (A)
25.400
mm
(Equiv. 1 in.) - Thread (D) 10-32 UNF (4.76mm)
- Max. Thread Length (C) 6.35 mm
- Head Height (B) 4.76 mm
- Head Diameter (F) 9.53 mm
- Allen Key Size 3.18 mm
- Material Carbon Steel - Hardened
Product Compliance and Data
Additional Resources
- Screws & Nuts Catalogue
- Shoulder Screws Catalogue
- Socket Set (Grub) Screws Catalogue
- Thumb Screws & Thumb Nuts Catalogue
- Thread Size Chart - Combined Imperial & Metric
Cross References
- Brighton Best 221013
- 91259A174
- Small Parts SHDA-4-16
- SHDA416
- HK-08010
- HK08010
- BRB-221013P
- BRB221013P


