
Miniature Bearings Australia
SHLD060-005-SKT-S3 - Datasheet
MBA
Category Information
Screws - Shoulder - Socket Head - 303 Stainless303 Stainless Socket Head Shoulder Screws. 303 Stainless Steel
- Also known as Pivot Pin, Fulcrum Screw, Stripper Bolt, Stepped Screw and Shoulder Socket Cap Screw
Product Data
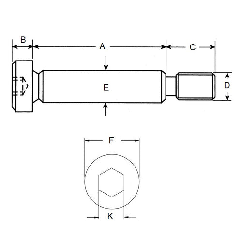
- Shoulder Diameter (E)
:
6.000
mm
+ 0.000 / - 0.076
(Equiv. 0.236 in.) - Shoulder Length (A)
5.000
mm
+ 0.05 / + 0.2
(Equiv. 0.197 in.) - Thread (D) M5x0.8
- Max. Thread Length (C) 6.00 mm
- Head Height (B) 5.00 mm
- Head Diameter (F) 10.00 mm
- Allen Key Size 3.00 mm
- Material Stainless Steel 303/304 (Similar to A2, 18-8) HRB80
Product Compliance and Data
Additional Resources
- Screws & Nuts Catalogue
- Shoulder Screws Catalogue
- Socket Set (Grub) Screws Catalogue
- Thumb Screws & Thumb Nuts Catalogue
- Thread Size Chart - Combined Imperial & Metric
Cross References
- 90265A137
- SHS5-5
- SHS55
- A9X25M0505


