
Miniature Bearings Australia
SC015F-005-C-SK-C - Datasheet
Brighton Best
Category Information
Screws - Socket Cap - Alloy Steel - Black OxideBlack Oxide Alloy Steel Socket Cap Screws. UNC - UNF - METRIC - Alloy Steel.
- An expanded range may be available on special order. Please enquire.
- Imperial Sizes to ANSI B18.3.
- Metric Sizes to DIN912.
Product Data
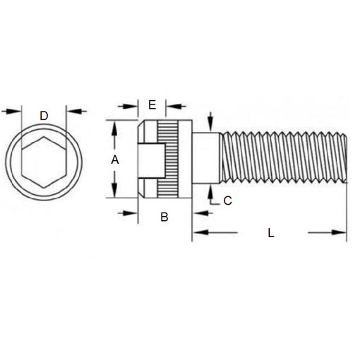
- Thread Size (C) : 0-80 UNF (1.52mm)
- Thread Length (L)
4.8
mm
(Equiv. 0.189 in.) - Material High Tensile Steel / Black Oxide
- Head Length (B Max.) 1.5 mm
- Head Diameter (A Max.) 2.5 mm
- Drive Depth (E) 0.64 mm
- Shank Diameter (C) 1.44 - 1.52 mm
- Hex Key (D) 1.27 (0.05in.) mm
- Pitch 0.318 mm
- Threads Per Inch 80 TPI
- Min thread Length 4.8 mm
- Material High Tensile Steel Black Oxide
Product Compliance and Data
Additional Resources
- Screws & Nuts Catalogue
- Shoulder Screws Catalogue
- Socket Set (Grub) Screws Catalogue
- Thumb Screws & Thumb Nuts Catalogue
- Thread Size Chart - Combined Imperial & Metric
Cross References
- 91251A054


